











((墨爾本)Eastwood monash
大29,Browns Road,Clayton
$989,000
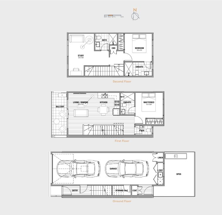
建造年份
2021
臥室(每層)
4
浴室
4
樓層
3
建坪(M2)
492
為未來而生。
這間房屋設有 4間臥室、4間浴室,總面積約為 492(M2) ,2樓層。
近期完成設備大規模更新,加上原屋主悉心維護,屋況一直維持在最佳狀態,營造出無比舒適的生活空間。

連續兩年榮獲星級優秀品牌大獎

經紀人檔案
梁先生(Victor) 是專業的移民及置業專家,累積超過 30年的房仲及移民專業經驗, 並致力在香港協助港人移民及購買心水樓盤,在本港事業上成就非凡。












